
Ett unikt designhus från kompetent leverantör med flera års erfarenhet av attefallshus. Detta hus kommer i ett mycket exklusivt utförande och har en design som verkligen sticker ut. Huset har också en planlösning som verkligen ser ut att bjuda mycket livskvalité!
Om detta låter intressant, så anmäl ditt intresse här, så blir du kontaktad av tillverkaren. Nedan finns specifikationer. Som alltid, gör din egen analys och utvärdering. Lycka till!
Tillverkarens beskrivning
För dig som gillar modern, exklusiv design erbjuder vi under en period ett hus som sticker ut för sin lyxiga stil. Huset byggs helt enligt svensk byggnorm och levereras med mycket hög standard. Detta hus är för dig som vill ha det absolut bästa. Enorma fönsterpartier, läcker träpanel mixat med plåtdetaljer på fasaderna, ett falsat plåttak, ekparkett på golven och läcker sten på badrumsväggarna. Läckert!
Kampanjpris med rabatt på hela 50 000! Tillfälligt pris: 805 000 SEK. Huset levereras endast i ett utförande. Det bästa!
Anmäl ditt intresse här (förutsättningslöst), så blir du kontaktad av tillverkaren för mer information.
SPECIFIKATIONER
- Ekparkett 14mm
- Svensktillverkade träfönster med treglas
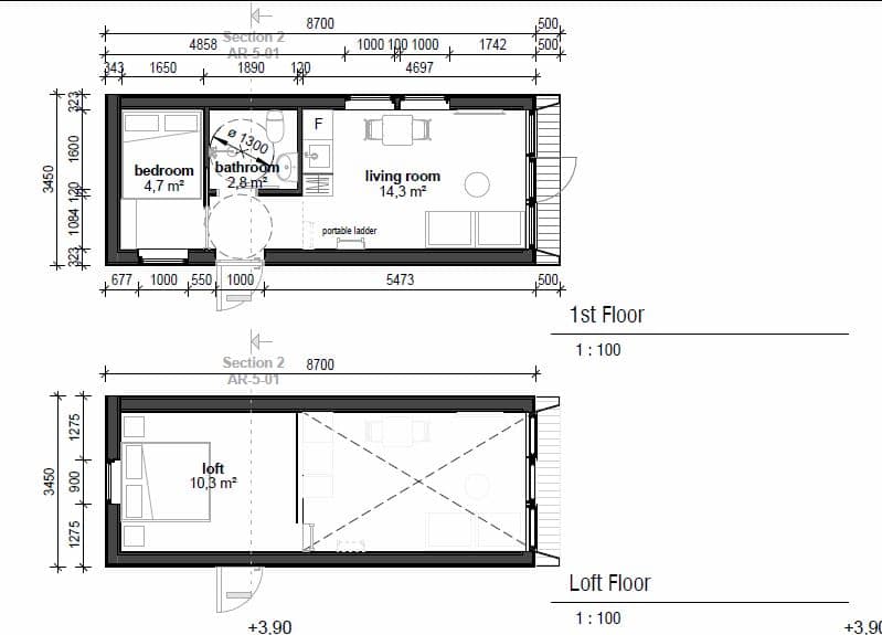
- Sovloft
- Kaklat badrum med golvvärme
- Separat sovrum
- WiFi styrd luftvärmepump
- Vitvaror från Electrolux
Intresserad av detta attefallshus och vill du veta mer?
Anmäl ditt intresse helt förutsättningslöst nedan, så kontaktar säljaren er direkt.
Lycka till! // Patrik & Micke 🙂

