HUSET ÄR SÅLT

Här har en av Sveriges största leverantörer av attefallshus kommit till oss, för de vill kunna sälja ett koncepthus till rabatt. När vi har chans att ge våra besökare mervärde, säger vi alltid ja tack!
Man sparar lite drygt 200 tkr :).
Om detta erbjudande låter intressant, så anmäl ditt intresse här, så blir du kontaktad av tillverkaren. Nedan finns specifikationer, bilder och förutsättningar. Först till kvarn gäller då det endast finns 1 hus.
– Behöver du hjälp med finansiering hittar du det här.
Som alltid, gör din egen analys och utvärdering. Lycka till!
Tillverkarens beskrivning
“Utvecklad och designad efter våra kunders mest populära val, erbjuds nu ett lyxigt koncepthus, tillgängligt för snabb leverans. Ett hus maximerat med smarta, snygga och unika tillval.
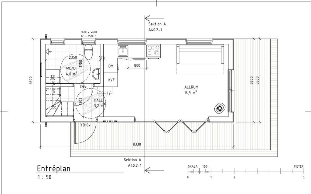
Koncepthuset – Kundens val är perfekt för dig som vill ha ett komplett Attefallshus 30 kvadratmeter med loft för ett super bra pris och en super snabb leverans. Först till kvarn.”
PRIS: 795.000 kronor istället för 1.003.375 kronor inklusive tillval (spara 208.000 kronor).
Fler bilder på attefallshus 30 kvm med loft
Anmäl ditt intresse här (förutsättningslöst), så blir du kontaktad av tillverkaren för mer information.Vad ingår i det presenterade huset priset och varför?
“Vi måste utföra ett tomtbesök hemma hos dig där vi analyserar behov samt möjligheter och kan på det sättet erbjuda ett fastpris. Vi vill att du som kund ska känna trygghet och inte behöva uppleva några oförutsägbara kostnader.”
“Vi levererar alltid våra hus med fri transport i hela Sverige, dock tillkommer följande kostnader och varierar i pris beroende på yttre faktorer som t. ex. typ av lyft behov:”
- Kommunens avgifter tillkommer.
- Kranlyft.
- Plintgrund och ev markberedning.
- Anslutning av el/va på tomten.
Intresserad av detta attefallshus och vill du veta mer?
Anmäl ditt intresse helt förutsättningslöst nedan, så kontaktar säljaren er direkt.
Lycka till! // Patrik & Micke 🙂


